| 주소 |
서울 강남구 신사동 504-11
서울 강남구 강남대로 652
|
거래 유형 |
월세
|
|---|---|---|---|
| 매물 종류 |
사무실임대
|
보증금 |
2억7,018만
|
| 월세 |
2,702만원
|
관리비 |
없음
|
| 미등기 여부 |
해당 안됨
|
위반 여부 |
해당 안됨
|
| 면적정보 |
전용 297.8512㎡ 90평 / 계약 634.7107㎡ 192평 (전용률 47%) 평
|
층정보 |
현재층 :13층 / 총층 :15층
|
| 방향 |
남서향 (주된 출입구 기준)
|
주용도 |
학원
|
| 기타용도 |
교육연구시설(학원)
|
방 / 화장실 |
1 개 / 2 개
|
| 주차 |
가능 (
총 주차대수 238 대 )
|
엘리베이터 |
6 대
|
| 화물 엘리베이터 |
0 대
|
테마 종류 |
LM
|
| 입주가능일 |
즉시입주가능
|
사용승인일 |
2021-08-20
|
| 매물 등록일 |
2025-11-10
|
📌 신사역 사무실 임대 | 조건 요약
💵 임대조건 : 35.8만원/전용평당
🏢 13층
🔹 전용 : 90.1평
🔹 보증금 : 27,018 만원
🔹 임대료 : 2,702 만원
🔹 관리비 : 522 만원
🔹 월합계 : 3,224 만원
🏢 12층
🔹 전용 : 135.1평
🔹 보증금 : 40,536 만원
🔹 임대료 : 4,054 만원
🔹 관리비 : 784 만원
🔹 월합계 : 4,837 만원
👉 매물특징
🔹신사역 도보권
🔹주차 : 임대70평당1대 (유료 20만원)
☎️ Contact
🔹목진수 대표 010-4809-3264 (ENG)
🔹이동환 팀장 010-4448-5010 (日本語)
🔹www.rivercity.kr
🔹blog.naver.com/vacantoffice
🔎 맞춤 제안
🔹희망 지역·예산별 후보지 비교제안 가능
반경500m
외관
입구
후면
Info
공용부
공용부
공용부
공용부
오피스동
도면
| 주소 |
신사동 504-11
|
건물명 |
SINSA SQUARE
|
|---|---|---|---|
| 대지면적 |
5,311㎡
1,607평
평
|
건축면적 |
2,654.66㎡
803평
(건폐율 49.98%)
평
|
| 연면적 |
35,044.29㎡
10,601평
평
|
용적률산정연면적 |
15,419.15㎡
4,664평
(용적률 290.32%)
평
|
| 층정보 |
지하 5층
/ 지상 15층
|
주용도 |
제2종근린생활시설
|
| 기타용도 |
업무시설근린생활시설판매시설운동시설문화및집회시설
|
위반 여부 |
해당 안됨
|
| 방향 |
-
|
주구조 |
철근콘크리트구조
|
| 높이 |
64.7m
|
지붕구조 |
(철근)콘크리트
|
| 주차 |
자주식(옥내)
238대
|
엘리베이터 |
일반
6
/ 비상용
1
|
| 세대수 |
-
|
허가일 |
2018-02-09
|
| 착공일 |
2018-11-12
|
사용승인일 |
2021-08-20
|
| 층 | 주용도 | 기타용도 | 바닥면적 |
|---|---|---|---|
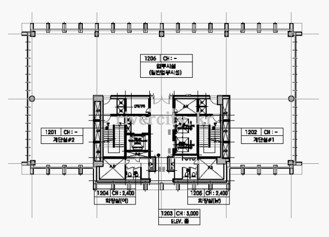
| 15층 | 사무소 | 업무시설(일반업무시설-사무소) | 411.82㎡ 124.58평 |
| 14층 | 사무소 | 업무시설(일반업무시설-사무소) | 560.77㎡ 169.63평 |
| 13층 | 사무소 | 업무시설(일반업무시설-사무소) | 411.82㎡ 124.58평 |
| 12층 | 사무소 | 업무시설(일반업무시설-사무소) | 560.77㎡ 169.63평 |
| 11층 | 사무소 | 제2종근린생활시설(사무소) | 411.82㎡ 124.58평 |
| 10층 | 사무소 | 업무시설(사무소) | 560.77㎡ 169.63평 |
| 9층 | 의원 | 제1종근린생활시설(의원) | 560.77㎡ 169.63평 |
| 8층 | 의원 | 제1종근린생활시설(의원) | 828.28㎡ 250.55평 |
| 7층 | 의원 | 제1종근린생활시설(의원) | 828.28㎡ 250.55평 |
| 6층 | 의원 | 제1종근린생활시설(의원) | 828.28㎡ 250.55평 |
| 5층 | 음악당 | 제2종근린생활시설(공연장) | 83.09㎡ 25.13평 |
| 5층 | 의원 | 제1종근린생활시설(의원) | 571.37㎡ 172.84평 |
| 4층 | 휴게음식점 | 제2종근린생활시설(휴게음식점) | 402.53㎡ 121.77평 |
| 4층 | 음악당 | 제2종근린생활시설(공연장) | 415.4㎡ 125.66평 |
| 4층 | 예식장 | 문화및집회시설(예식장) | 1,139.02㎡ 344.55평 |
| 3층 | 일반음식점 | 제2종근린생활시설(일반음식점,휴게음식점) | 2,274.86㎡ 688.15평 |
| 2층 | 일반음식점 | 제2종근린생활시설(일반음식점,휴게음식점) | 2,306.34㎡ 697.67평 |
| 1층 | 일반음식점 | 제2종근린생활시설(일반음식점,휴게음식점,자동차영업소) | 1,743.89㎡ 527.53평 |
| 1층 | 치과의원 | 제1종근린생활시설(치과의원) | 233.44㎡ 70.62평 |
| 1층 | 의원 | 제1종근린생활시설(의원) | 285.83㎡ 86.46평 |
| 지5층 | 기타제2종근린생활시설 | 주차장,기계실 | 3,980.2㎡ 1,204.01평 |
| 지4층 | 기타제2종근린생활시설 | 주차장 | 4,095.97㎡ 1,239.03평 |
| 지3층 | 기타제2종근린생활시설 | 주차장,전기실 | 3,583.32㎡ 1,083.95평 |
| 지2층 | 일반음식점 | 제2종근린생활시설(사진관) | 4,107.77㎡ 1,242.6평 |
| 지1층 | 서점(1종근.생미해당) | 제2종근린생활시설(일반음식점) | 2,639.15㎡ 798.34평 |
| 지1층 | 의원 | 제1종근린생활시설(의원) | 1,218.73㎡ 368.67평 |

중복으로 체크된 매물 없어
등록 가능한 주소 또는 호실 입니다