매물번호 12596
매물번호 12596
  • 매물 정보
  • 매물 설명
  • 건물 정보
  • 주변 교통정보
  • 위치 및 주변시설
  • 다른 매물
  • 담당자 정보
평으로 변환
맨 위로 이동
맨 아래로 이동
[여의도동/세우빌딩] 여의나루역 사무실 임대
보증금6,871만원월세687만원
서울 영등포구 여의도동
매물 종류 사무실임대
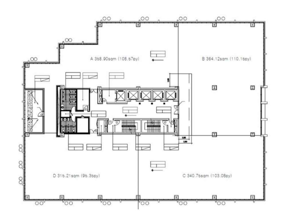
면적 전용 173.2231㎡ 전용 52평
층정보 현재층 : 7층 / 총층 : 14층
관리비 -
매물 정보 (조회수 : 27)
주소
서울 영등포구 여의도동
거래 유형
월세
매물 종류
사무실임대
보증금
6,871만원
월세
687만원
관리비
없음
면적정보
공급 283.9669㎡ 86평 / 전용 173.2231㎡ 52평 (전용률 61%)
층정보
현재층 : 7층 / 총층 : 14층
방향
남동향 (주된 출입구 기준)
매물상태
비어있음
주용도
사무소
기타용도
업무시설(사무소)
방 / 화장실
1 개 / 2 개
주차
가능 ( 총 주차대수 140 대 )
엘리베이터
4 대
화물용 엘리베이터
0 대
테마 종류
사옥∙업무용
입주가능일
즉시입주가능
사용승인일
2007-03-14
매물 등록일
2025-10-09
매물 설명

[Rate](만원,3.3㎡당)  [기준]  임대면적

[보증금] 80  [임대료]  8.0  [관리비]  3.5

[전용률]  --.-%  [임+관리비]  11.5  [NOC] 18.8

[Vacancy]  (만원,3.3㎡당) 수정일 기준

임대 전용 보증금 임대료 관리비 임+관
7F 85.9 52.4 6,871 687 301 988

[Genral]

[주차]  무료: 임대70평당1대,  유료: 16.5만원/대

[교통]  여의나루역, 국회의사당역

반경500m

외관

외관

입구

입구

편의시설

도면

건물 정보
세우빌딩 세우빌딩 업무시설
건물명
세우빌딩
대지면적
2,850㎡ 862평
건축면적
1,699.27㎡ 514평 (건폐율 59.62%)
연면적
32,732.15㎡ 9,901평
용적률산정연면적
23,021.31㎡ 6,964평 (용적률 807.77%)
층정보
지하 4층 / 지상 14층
주용도
업무시설
기타용도
업무시설
방향
-
주구조
일반철골구조
높이
48.95m
지붕구조
(철근)콘크리트
주차
자주식(옥내) 140대
엘리베이터
일반 4 / 비상용 1
세대수
-
허가일
2003-08-28
착공일
2005-01-02
사용승인일
2007-03-14
건물 층정보
주용도 기타용도 면적
옥탑1층 사무소 ELEV기계실/물탱크실(연면적제외) 216㎡ 65.34평
14층 사무소 업무시설(사무소) 1,671.43㎡ 505.61평
13층 사무소 업무시설(사무소) 1,671.43㎡ 505.61평
12층 사무소 업무시설(사무소) 1,671.43㎡ 505.61평
11층 사무소 업무시설(사무소) 1,671.43㎡ 505.61평
10층 사무소 업무시설(사무소) 1,671.43㎡ 505.61평
9층 사무소 업무시설(사무소) 1,671.43㎡ 505.61평
8층 제조업소 제2종근린생활시설(제조업소) 499.09㎡ 150.97평
8층 사무소 업무시설(사무소) 1,172.34㎡ 354.63평
7층 사무소 업무시설(사무소) 1,671.43㎡ 505.61평
6층 사무소 업무시설(사무소) 1,671.43㎡ 505.61평
5층 사무소 업무시설(사무소) 1,671.43㎡ 505.61평
4층 사무소 업무시설(사무소) 1,671.43㎡ 505.61평
3층 사무소 업무시설(사무소) 1,671.43㎡ 505.61평
2층 사무소 업무시설(사무소) 1,322.17㎡ 399.96평
1층 일반음식점 제2종근린생활시설(일반음식점) 490.23㎡ 148.29평
1층 소매점 제1종근린생활시설(소매점) 82.49㎡ 24.95평
1층 사무소 업무시설(사무소) 1,069.26㎡ 323.45평
지4 사무소 주차장,기계/전기실 2,435.87㎡ 736.85평
지3 사무소 주차장 2,435.87㎡ 736.85평
지2 사무소 주차장 2,435.87㎡ 736.85평
지1 기타제2종근린생활시설 제1종/제2종근린생활시설,주차장 2,403.23㎡ 726.98평
인근 지하철(주변 5km 이내)
5호선 여의나루역 660m 9호선 국회의사당역 770m 5호선 여의도역 960m
인근 버스 (주변 500m 이내)
경기 7007-1 150m 간선 261 160m 간선 461 160m 간선 463 160m 간선 753 160m 경기 1002 160m 지선 5713 160m 지선 6623 160m 지선 5634 160m 지선 5633 160m 마을 영등포10 180m 경기 10 210m 간선 160 340m 간선 262 340m 간선 360 340m 간선 600 340m 간선 662 340m 간선 N16 340m 간선 260 340m 지선 5615 340m 지선 5618 340m 지선 7613 340m 지선 8671 340m 공항 6007 370m 경기 88 470m 경기 8601 480m 경기 8600 480m 경기 G6005 480m 간선 새벽A160 490m 지선 6628 490m 지선 5012 490m
경기 7007-1(여의도공원9번출입구·경기)
150m
간선 261(여의도공원9번출입구·19138)
160m
간선 461(여의도순복음교회·19136)
160m
간선 463(여의도순복음교회·19136)
160m
간선 753(여의도공원9번출입구·19138)
160m
위치 및 주변시설
편의시설
안전시설
교육시설
지하철
버스
편의점
카페
은행
관공서
학교
학원
병원
약국
영화관
경찰
CCTV
어린이집
유치원
초등학교
중학교
고등학교
대학교
학원
영등포구의 다른매물
서울 영등포구 여의도동
보증금1,500만원월세100만원보증금2,400만원월세175만원보증금1,500만원월세100만원
사무실임대 방 1개 / 화장실 2개
서울 영등포구 여의도동
보증금12,000월세750만원
사무실임대 방 1개 / 화장실 2개
서울 영등포구 여의도동
보증금700만원월세70만원보증금1,000만원월세80만원보증금500만원월세50만원보증금800만원월세60만원보증금1,000만원월세100만원
사무실임대 방 1개 / 화장실 2개
서울 영등포구 여의도동
보증금1월세900만원
사무실임대 방 1개 / 화장실 2개
서울 영등포구 여의도동
보증금912만원월세76만원보증금2,238만원월세187만원보증금1,923만원월세160만원보증금719만원월세60만원보증금817만원월세68만원
사무실임대 방 1개 / 화장실 2개
서울 영등포구 여의도동
월세금액 문의
사무실임대 방 1개 / 화장실 2개
서울 영등포구 여의도동
보증금28,085월세2,809만원보증금22,014월세2,201만원
사무실임대 화장실 2개
서울 영등포구 여의도동
월세금액 문의
사무실임대 방 1개 / 화장실 2개
서울 영등포구 여의도동
월세금액 문의
사무실임대 방 1개 / 화장실 2개
서울 영등포구 여의도동
보증금19,776월세1,978만원보증금28,910월세2,891만원
사무실임대 방 1개 / 화장실 2개
서울 영등포구 여의도동
월세금액 문의
사무실임대 방 1개 / 화장실 2개
서울 영등포구 여의도동
월세금액 문의
사무실임대 방 1개 / 화장실 2개
서울 영등포구 여의도동
보증금5,500만원월세506만원보증금3,000만원월세160만원보증금1,875만원월세100만원보증금3,000만원월세160만원보증금13,000월세914만원
사무실임대 방 1개 / 화장실 2개
서울 영등포구 여의도동
월세금액 문의
사무실임대 방 1개 / 화장실 2개
서울 영등포구 여의도동
월세금액 문의
사무실임대 화장실 2개
서울 영등포구 여의도동
월세금액 문의
사무실임대 화장실 2개
서울 영등포구 여의도동
보증금19,542월세1,954만원보증금41,934월세4,193만원보증금19,542월세1,954만원
사무실임대 방 1개 / 화장실 2개
서울 영등포구 여의도동
월세금액 문의
사무실임대 방 1개 / 화장실 2개
서울 영등포구 여의도동
월세금액 문의
사무실임대 화장실 2개
서울 영등포구 여의도동
월세금액 문의
사무실임대 방 1개 / 화장실 2개
담당자 정보
사무실임대
01048093264
리버시티공인중개사사무소
  • 대표자
    목진수 대표
  • 소재지
    서울시 중구 세종대로 136, 8층
  • 등록번호
    11140-2025-00029
  • 대표번호
    010-4809-3264
[여의도동/세우빌딩] 여의나루역 사무실 임대
보증금6,871만원월세687만원
서울 영등포구 여의도동
사무실임대
전용 173.2231㎡ 전용 52평
현재층 : 7층 / 총층 : 14층
-
매물 문의하기
사무실임대
01048093264
리버시티공인중개사사무소
  • 대표자
    목진수 대표
  • 소재지
    서울시 중구 세종대로 136, 8층
  • 등록번호
    11140-2025-00029
  • 대표번호
    010-4809-3264
번역
최근 본매물
여의도동
6,871687
[12596]
[여의도동/세우빌딩] 여의나루역 사무실 임대
서울 영등포구 여의도동
6,871687