| 주소 |
서울 강남구 역삼동 747-25
서울 강남구 논현로 407
|
거래 유형 |
월세
|
|---|---|---|---|
| 매물 종류 |
사무실임대
|
보증금 |
7억7,520만
|
| 월세 |
6,460만원
|
관리비 |
없음
|
| 면적정보 |
공급 1,925.9504㎡ 583평 / 전용 1,289.2562㎡ 390평 (전용률 67%) 평
|
층정보 |
현재층 : 8층 / 총층 : 8층
|
| 방향 |
남서향 (주된 출입구 기준)
|
매물상태 |
비어있음
|
| 주용도 |
업무시설
|
기타용도 |
업무시설,근린생활시설
|
| 방 / 화장실 |
1 개 / 2 개
|
주차 |
가능 (
총 주차대수 31 대 )
|
| 엘리베이터 |
1 대
|
화물용 엘리베이터 |
0 대
|
| 테마 종류 |
사옥∙업무용
|
입주가능일 |
즉시입주가능 협의가능
|
| 사용승인일 |
2025-02-28
|
매물 등록일 |
2025-11-20
|
[Rate](만원,3.3㎡당) [기준] 임대면적 [전용률] --.-%
∙[보]133 [임]11.1 [관]2.0 [임+관]13.1 [NOC]19.5
[Vacancy] (만원,3.3㎡당)
| 층 | 임대 | 전용 | 보증금 | 임대료 | 관리비 | 임+관 | |
| 8F | 582.6 | 390.0 | 77,520 | 6,460 | 1,160 | 7,620 | |
[Genral]
∙[주차] 대장상:31대, 세대주차:협의
∙[교통] 역삼역
반경500m
외관
입구
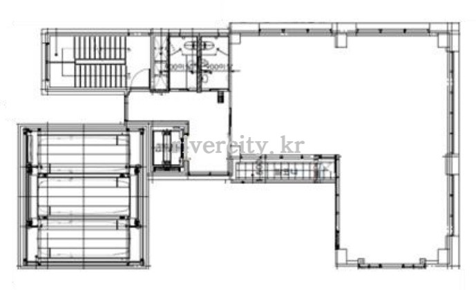
평면도
| 건물명 |
K407타워
|
대지면적 |
496.4㎡
150평
평
|
|---|---|---|---|
| 건축면적 |
247.72㎡
75평
(건폐율 49.9%)
평
|
연면적 |
1,925.23㎡
582평
평
|
| 용적률산정연면적 |
1,238.2㎡
375평
(용적률 249.44%)
평
|
층정보 |
지하 2층
/ 지상 8층
|
| 주용도 |
제2종근린생활시설
|
기타용도 |
업무시설(사무소)
|
| 방향 |
-
|
주구조 |
철근콘크리트구조
|
| 높이 |
34.85m
|
지붕구조 |
(철근)콘크리트
|
| 주차 |
자주식(옥외)
1대
기계식(옥내)
30대
|
엘리베이터 |
일반
1
|
| 세대수 |
-
|
허가일 |
2022-06-08
|
| 착공일 |
2023-04-07
|
사용승인일 |
2025-02-28
|
| 층 | 주용도 | 기타용도 | 면적 |
|---|---|---|---|
| 옥탑1층 | 기타일반업무시설 | 기타일반업무시설(연면적제외) | 17.61㎡ 5.33평 |
| 8층 | 사무소 | 업무시설(사무소) | 66.73㎡ 20.19평 |
| 7층 | 사무소 | 업무시설(사무소) | 157.54㎡ 47.66평 |
| 6층 | 사무소 | 업무시설(사무소) | 156.64㎡ 47.38평 |
| 5층 | 사무소 | 업무시설(사무소) | 156.64㎡ 47.38평 |
| 4층 | 사무소 | 업무시설(사무소) | 157.62㎡ 47.68평 |
| 3층 | 사무소 | 업무시설(사무소) | 157.1㎡ 47.52평 |
| 2층 | 휴게음식점 | 제2종근린생활시설(휴게음식점) | 190.68㎡ 57.68평 |
| 1층 | 기타제2종근린생활시설 | 주차장 | 46.11㎡ 13.95평 |
| 1층 | 휴게음식점 | 제2종근린생활시설(휴게음식점) | 195.25㎡ 59.06평 |
| 지2층 | 사진관 | 제2종근린생활시설(사진관), 펌프실 | 327.58㎡ 99.09평 |
| 지1층 | 일반음식점 | 제2종근린생활시설(일반음식점) | 313.34㎡ 94.79평 |

중복으로 체크된 매물 없어
등록 가능한 주소 또는 호실 입니다