| 주소 |
서울 종로구 돈의동 137
서울 종로구 돈화문로5가길 1
|
거래 유형 |
월세
|
|---|---|---|---|
| 매물 종류 |
사무실임대
|
보증금 |
6,500만원
|
| 월세 |
563만원
|
관리비 |
없음
|
| 미등기 여부 |
해당 안됨
|
위반 여부 |
해당 안됨
|
| 면적정보 |
전용 148.7603㎡ 45평 / 계약 264.4628㎡ 80평 (전용률 56%) 평
|
층정보 |
현재층 :4층 / 총층 :9층
|
| 방향 |
북서향 (주된 출입구 기준)
|
매물상태 |
비어있음
|
| 주용도 |
소매점
|
기타용도 |
제1종근린생활시설(소매점)
|
| 방 / 화장실 |
1 개 / 2 개
|
주차 |
가능 (
총 주차대수 131 대 )
|
| 엘리베이터 |
3 대
|
화물용 엘리베이터 |
0 대
|
| 테마 종류 |
확인완료
|
입주가능일 |
즉시입주가능
|
| 사용승인일 |
2004-10-29
|
매물 등록일 |
2026-04-17
|
| 매물 확인일 |
2026-04-17
|
📌종로3가역 사무실 임대 | 조건 요약
💵임대조건 : 14.9만원/전용평당
🏢7층
🔹 전용 : 89.5평
🔹 보증금 : 15,000 만원
🔹 임대료 : 1,200 만원
🔹 관리비 : 130 만원
🔹 월합계 : 1,330 만원
🏢6층
🔹 전용 : 18.0평
🔹 보증금 : 1,200 만원
🔹 임대료 : 50 만원
🔹 관리비 : 40 만원
🔹 월합계 : 90 만원
🏢4층
🔹 전용 : 45.0평
🔹 보증금 : 6,500 만원
🔹 임대료 : 563 만원
🔹 관리비 : 113 만원
🔹 월합계 : 676 만원
👉매물특징
🔹6F : 판매영업시설
🔹종로3가·을지로3가역 도보권
🔹주차 : 대장상 131대
※ 다른 층수/면적 및 비교매물 제안가능
☎️Contact
🔹목진수 대표 010-4809-3264 (ENG)
🔹이동환 팀장 010-4448-5010 (日本語)
🔹www.rivercity.kr
반경500m
외관
입구
7F입구
7F
7F
7F
7F
7F
7F
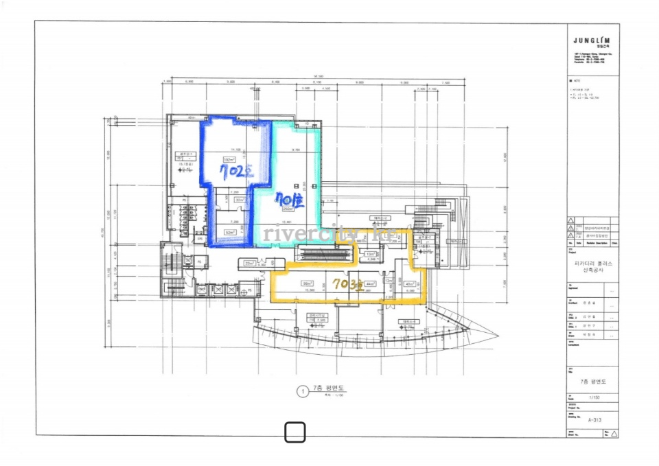
7F도면
6F
6F
6F
6F
6F
6F
6F
407호
407호
407호
407호
407호
407호
407호
407호
407호
407호
407호
407호
407호
407호
702호
702호
702호
702호
702호
702호
702호
702호
702호
702호
702호
702호
702호
702호
| 주소 |
돈의동 137
|
건물명 |
피카디리플러스
|
|---|---|---|---|
| 대지면적 |
3,768.6㎡
1,140평
평
|
건축면적 |
2,255.64㎡
682평
(건폐율 59.85%)
평
|
| 연면적 |
31,684.87㎡
9,585평
평
|
용적률산정연면적 |
16,249.51㎡
4,915평
(용적률 431.18%)
평
|
| 층정보 |
지하 7층
/ 지상 9층
|
주용도 |
판매시설
|
| 기타용도 |
판매및영업시설 문화및집회시설 위락시설
|
위반 여부 |
해당 안됨
|
| 방향 |
-
|
주구조 |
일반철골구조
|
| 높이 |
40.02m
|
지붕구조 |
(철근)콘크리트슬래브
|
| 주차 |
자주식(옥내)
128대
, 자주식(옥외)
3대
|
엘리베이터 |
일반
3
/ 비상용
1
|
| 세대수 |
2114 세대
|
허가일 |
2001-05-17
|
| 착공일 |
2002-03-05
|
사용승인일 |
2004-10-29
|
| 층 | 주용도 | 기타용도 | 면적 |
|---|---|---|---|
| 9 | 제조업소 | 제2종근린생활시설(제조업소) | 333.24㎡ 100.81평 |
| 9 | 사무소 | 업무시설(사무소) | 139.31㎡ 42.14평 |
| 9 | 사무소 | 업무시설(사무소) | 220.11㎡ 66.58평 |
| 9 | 사무소 | 업무시설(사무소) | 701.38㎡ 212.17평 |
| 9 | 사무소 | 업무시설(사무소) | 300.99㎡ 91.05평 |
| 8 | 의원 | 제1종근린생활시설(의원) | 62.14㎡ 18.8평 |
| 8 | 의원 | 제1종근린생활시설(의원) | 286.17㎡ 86.57평 |
| 8 | 의원 | 제1종근린생활시설(의원) | 213.66㎡ 64.63평 |
| 8 | 직업훈련소 | 교육연구시설(직업훈련소) | 781.34㎡ 236.36평 |
| 7 | 소매점 | 제1종근린생활시설(소매점) | 296.01㎡ 89.54평 |
| 7 | 학원 | 교육연구시설 | 1,373.83㎡ 415.58평 |
| 6 | 기타판매시설 | 판매및영업시설(기타판매및영업시설) | 1,839.71㎡ 556.51평 |
| 5 | 기타판매시설 | 판매및영업시설(기타판매및영업시설) | 1,911.72㎡ 578.3평 |
| 4 | 기타판매시설 | 판매및영업시설(기타판매및영업시설) | 2,075.87㎡ 627.95평 |
| 3 | 기타판매시설 | 판매및영업시설(기타판매및영업시설) | 2,010.96㎡ 608.32평 |
| 2 | 기타판매시설 | 판매및영업시설(기타판매및영업시설) | 2,081.34㎡ 629.61평 |
| 1 | 기타판매시설 | 판매및영업시설(기타판매및영업시설) | 1,621.73㎡ 490.57평 |
| 지7 | 기타판매시설 | 판매및영업시설(기타판매및영업시설) | 985.53㎡ 298.12평 |
| 지7 | 기타판매시설 | 판매및영업시설(기타판매및영업시설) | 191.5㎡ 57.93평 |
| 지7 | 기타판매시설 | 판매및영업시설(기타판매및영업시설) | 1,270.82㎡ 384.42평 |
| 지6 | 기타판매시설 | 판매및영업시설(기타판매및영업시설) | 384.5㎡ 116.31평 |
| 지6 | 기타판매시설 | 판매및영업시설(기타판매및영업시설) | 1,218.32㎡ 368.54평 |
| 지5 | 기타판매시설 | 판매및영업시설(기타판매및영업시설) | 2,316.04㎡ 700.6평 |
| 지5 | 기타판매시설 | 판매및영업시설(기타판매및영업시설) | 248.47㎡ 75.16평 |
| 지5 | 기타판매시설 | 판매및영업시설(기타판매및영업시설) | 136.1㎡ 41.17평 |
| 지4 | 기타 운동시설 | 클라이밍 | 601.26㎡ 181.88평 |
| 지4 | 휴게음식점 | 제1종근린생활시설(휴게음식점) | 14.01㎡ 4.24평 |
| 지4 | 기타문화및집회시설 | 문화및집회시설(기타문화및집회시설) | 419.19㎡ 126.8평 |
| 지4 | 기타문화및집회시설 | 문화및집회시설(기타문화및집회시설) | 1,511.89㎡ 457.35평 |
| 지3 | 기타 운동시설 | 클라이밍 | 203.33㎡ 61.51평 |
| 지3 | 기타문화및집회시설 | 문화및집회시설(기타문화및집회시설) | 413.75㎡ 125.16평 |
| 지3 | 기타문화및집회시설 | 문화및집회시설(기타문화및집회시설) | 363.39㎡ 109.93평 |
| 지3 | 기타문화및집회시설 | 문화및집회시설(기타문화및집회시설) | 859.07㎡ 259.87평 |
| 지2 | 청소년게임제공업의시설 | 청소년게임제공업의시설 | 17.54㎡ 5.31평 |
| 지2 | 휴게음식점 | 제1종근린생활시설(휴게음식점) | 65.24㎡ 19.74평 |
| 지2 | 기타문화및집회시설 | 문화및집회시설(기타문화및집회시설) | 2,030.42㎡ 614.2평 |
| 지2 | 기타문화및집회시설 | 문화및집회시설(기타문화및집회시설) | 419.19㎡ 126.8평 |
| 지1 | 기타문화및집회시설 | 문화및집회시설(기타문화및집회시설) | 413.75㎡ 125.16평 |
| 지1 | 기타문화및집회시설 | 문화및집회시설(기타문화및집회시설) | 1,052.92㎡ 318.51평 |
| 지1 | 기타문화및집회시설 | 문화및집회시설(기타문화및집회시설) | 299.13㎡ 90.49평 |

중복으로 체크된 매물 없어
등록 가능한 주소 또는 호실 입니다